Сдается коммерческая недвижимость торгового назначения, 272 м2 за 145 тыс. руб.
Добавлено: 05 ноября 2025
Обновлено: 13 ноября 2025
Обновлено: 13 ноября 2025
Местоположение
- Регион:
- Челябинская область
- Населенный пункт:
- Копейск
- Адрес:
- Коммунистический проспект, 28
Строительные характеристики
- Категория:
- коммерческая недвижимость торгового назначения
Условия сделки
- Цена:
- 145 000 руб.
Описание
АН "Первая линия"- Ваш эксперт в коммерческой недвижимости.
Это предложение идеально подходит для тех, кто ищет коммерческое помещение с хорошими перспективами развития бизнеса. Если вас заинтересовало данное предложение, рекомендую связаться с АН "Первая линия" для обсуждения деталей и осмотра объекта лично. Такой шаг позволит вам оценить все преимущества и принять взвешенное решение.
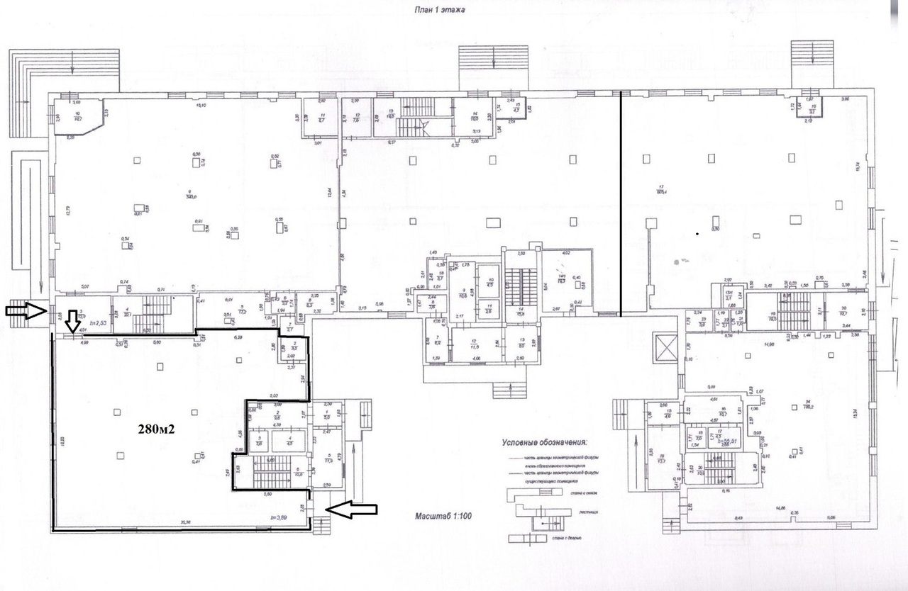
г. Копейск пр.Коммунистический 28
Площадь: стоимость указана за площадь 110 м2
+ Предлагаем в аренду торговое помещение на первом этаже нового дома от 110-273м
+ Отличное местоположение
+ Удобная,большая парковка
+ Свободная планировка, наличие второго входа!
+ Высокие потолки h-4
+ Отличная торговая площадь расположенная на первом этаже монолитного дома, на самой оживленной улице Копейска
Интересно? Звоните!
Обязательно с вами договоримся!
Фотографии













Расположение
Контакты
- Телефон:
- +79624850840