Продается коммерческая недвижимость торгового назначения, 272 м2 за 30 млн. руб.
Добавлено: 05 ноября 2025
Обновлено: 13 ноября 2025
Обновлено: 13 ноября 2025
Местоположение
- Регион:
- Челябинская область
- Населенный пункт:
- Копейск
- Адрес:
- Коммунистический проспект, 28
Строительные характеристики
- Категория:
- коммерческая недвижимость торгового назначения
Условия сделки
- Цена:
- 30 000 000 руб.
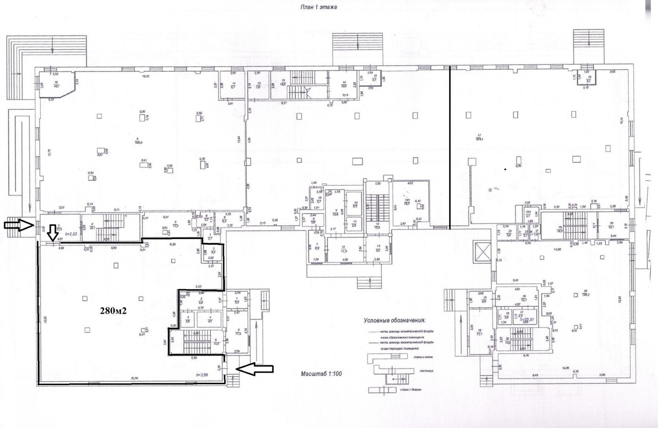
Описание
АН "Первая линия"- Ваш эксперт в коммерческой недвижимости.
г. Копейск пр.Коммунистический 28
Площадь: 272.3м2
+Предлагаем в покупку торговое помещение на первом этаже нового дома.
+Отличное местоположение
+Удобная,большая парковка
+Свободная планировка,
+Наличие второго входа
+Высокие потолки h-4
+Отличная торговая площадь расположенная на первом этаже монолитного дома, на самой оживленной улице Копейска
Интересно? Звоните!
Обязательно с вами договоримся!
Фотографии














Расположение
Контакты
- Телефон:
- +79624850840